Departamentos Amplios de primera Calidad
USD 64.000 - C703
Venta
Santiago del Estero N° 2883 e/ Av. San Bernardo y Hernandarias
Descripción
14 semipisos y un Penthouse: S. del Estero N° 2883 e/ Av. San Bernardo y Hernandarias
EDIFICIO FARO II: EDIFICIO ECO TOTALMENTE INOVADOR EN LA ZONA!!!
LOOK ECO !!!! CON JARDIN VERTICAL!!
Innovación Ecológica en la Zona con Jardín Vertical ¡Bienvenido a una nueva era en vivienda sostenible!. Este edificio ecológico de vanguardia presenta un diseño innovador con un impresionante jardín vertical.
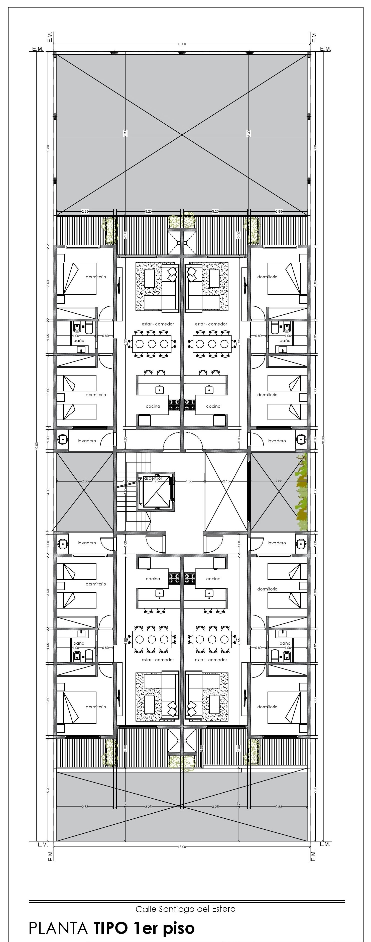
Cada departamento ofrece: Amplio living-comedor con cocina integrada y desayunador. Baño completo. Dos dormitorios espaciosos, cada uno con doble balcón aterrazado, equipado con parrilla y lavadero privado.
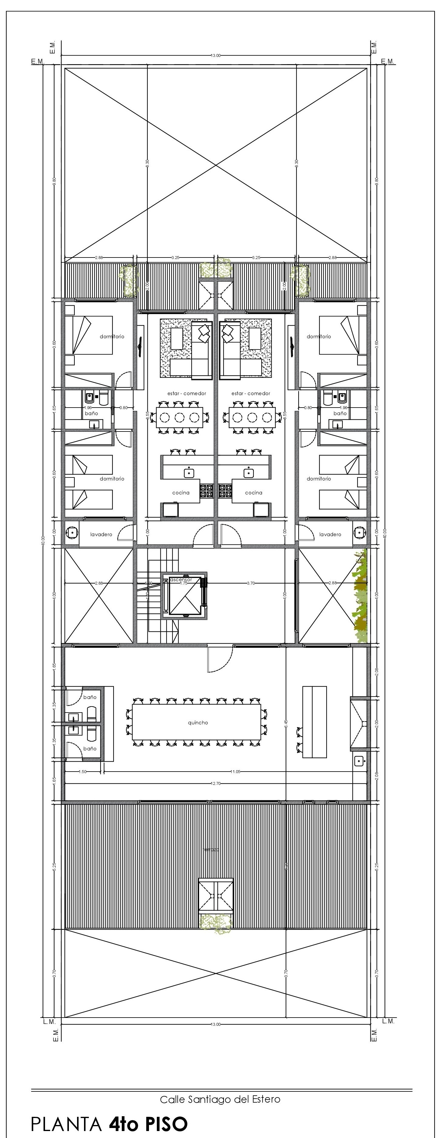
Además, el cuarto piso presenta dos semipisos y un penthouse con generosos espacios, terrazas expansivas, baulera, ascensor inteligente y balcones aterrazados dobles. Las unidades incluyen cocina con desayunador, parrilla y lavadero privado. La disponibilidad de cocheras agrega comodidad.
Características Excepcionales: Calidad premium y enfoque eco-friendly. Totalidad de instalaciones eléctricas.
¡Disfruta de una experiencia residencial sostenible y lujosa en el Faro II, donde el diseño moderno y la preocupación por el entorno se unen en perfecta armonía!
Fecha de Entrega Marzo 2026




Caracteristicas
Cochera
Cochera techada
Lavadero
Parrilla
Living
Terraza
UNICO BLOQUE
| PISO | UNIDAD | DISPONIBILIDAD | DORM | BAÑOS | TERRAZA | PATIO | BALCÓN | PARRILLA | COCHERA | SUPERFICIE (m²) |
|---|---|---|---|---|---|---|---|---|---|---|
| 1° | Dpto 1 | VENDIDO | 2 | 1 | NO | NO | SI | SI | SI | 55 |
| 1° | Dpto 2 | VENDIDO | 2 | 1 | NO | NO | SI | SI | SI | 55 |
| 1° | Dpto 3 | VENDIDO | 2 | 1 | NO | NO | SI | SI | SI | 55 |
| 1° | Dpto 4 | VENDIDO | 2 | 1 | NO | NO | SI | SI | SI | 55 |
| 2° | Dpto 5 | DISPONIBLE | 2 | 1 | NO | NO | SI | SI | SI | 55 |
| 2° | Dpto 6 | DISPONIBLE | 2 | 1 | NO | NO | SI | SI | SI | 55 |
| 2° | Dpto 7 | DISPONIBLE | 2 | 1 | NO | NO | SI | SI | SI | 55 |
| 2° | Dpto 8 | DISPONIBLE | 2 | 1 | NO | NO | SI | SI | SI | 55 |
| 3° | Dpto 9 | DISPONIBLE | 2 | 1 | NO | NO | SI | SI | SI | 55 |
| 3° | Dpto 10 | DISPONIBLE | 2 | 1 | NO | NO | SI | SI | SI | 55 |
| 3° | Dpto 11 | DISPONIBLE | 2 | 1 | NO | NO | SI | SI | SI | 55 |
| 3° | Dpto 12 | DISPONIBLE | 2 | 1 | NO | NO | SI | SI | SI | 55 |
| 4° | Dpto 13 | DISPONIBLE | 2 | 1 | SI | NO | SI | SI | SI | 55 |
| 4° | Dpto 14 | DISPONIBLE | 2 | 1 | SI | NO | SI | SI | SI | 55 |
| 4° | Dpto 15 | VENDIDO | 3 | 1 | SI | NO | SI | SI | SI |
Ubicación
Pais: Argentina
Provincia: Buenos Aires
Ciudad: San Bernardo
Dirección: Santiago del Estero N° 2883 e/ Av. San Bernardo y Hernandarias